Shtepi ne shitje Apartament ne Tirane, 2+1, Mobilimi Bosh, pa mobiluar, Pagesa 95,000 Euro.

Shtepi ne shitje | Data: 21/12/2025 18:34 | PostID: 570267
Pagesa 95,000 Euro
Mobilimi 2+1, Bosh, pa mobiluar
Siperfaqa 100 m²
Kati Kati 3, Ashensor 1
Ambienti Apartament
Deal? Po pranojme agjensi
Vleresim i sistemit ne qera 346 Euro
Qyteti - Zona Tirane - Kamez/Paskuqan/Babrru
Adresa PAION Rezidence, Paskuqan
Lexime
5

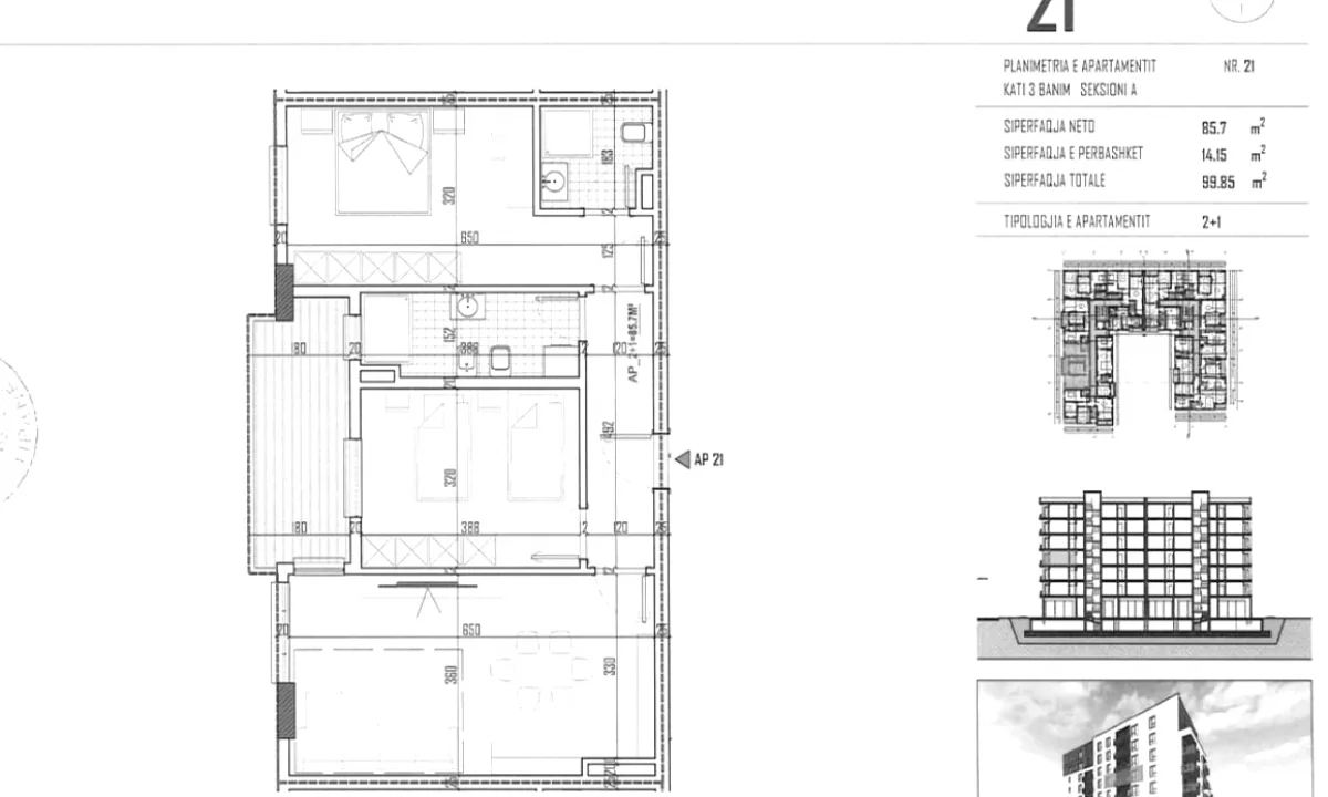
Shitet Apartament 2+1+2 – PAION Rezidence, Paskuqan


Shitet apartament tipologji 2+1+2 tualete, i pozicionuar në katin e 3-të banim të një rezidence të re me ashensor, në PAION Rezidence – Paskuqan, zonë e qetë dhe në zhvillim të vazhdueshëm.


Detaje të pronës:




  • Sipërfaqe bruto: 99.8 m²




  • Sipërfaqe neto: 85.7 m²




  • Kati: 3 banim




  • Pallat me ashensor




  • Faza e ndërtimit: Karabina & fillim tulle




  • Afati i përfundimit: 18 muaj




Apartamenti ka organizim funksional, hapësira të rregullta dhe dy tualete, duke ofruar komoditet maksimal për banim familjar ose investim të sigurt.


Çmimi:



  • Totali: 95,000 €




📞 Për më shumë informacion ose për rezervim, na kontaktoni.


Ndaje