Shtepi ne shitje Apartament ne Tirane, 2+1, Mobilimi Bosh, pa mobiluar, Pagesa 79,400 Euro.

Shtepi ne shitje | Data: 21/12/2025 18:28 | PostID: 570263
Pagesa 79,400 Euro
Mobilimi 2+1, Bosh, pa mobiluar
Siperfaqa 88 m²
Kati Kati 7, Ashensor 1
Ambienti Apartament
Deal? Po pranojme agjensi
Vleresim i sistemit ne qera 272 Euro
Qyteti - Zona Tirane - Kamez/Paskuqan/Babrru
Adresa Kamez, Rruga Aleksandria
Lexime
3

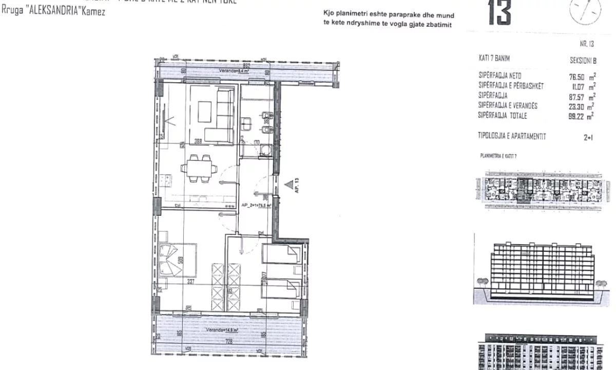
Shitet Apartament 2+1 me Verandë – Kamez, Rr. Aleksandria


Shitet apartament tipologji 2+1 + verandë, i pozicionuar në katin e 7-të banim të një pallati të ri me ashensor, në zonë të qetë dhe në zhvillim në Kamez, Rruga Aleksandria.


Detaje të pronës:




  • Sipërfaqe bruto: 87.6 m²




  • Sipërfaqe neto: 76.5 m²




  • Sipërfaqe verandë: 23.3 m²




  • Orientim: Jug (ndriçim natyral gjatë gjithë ditës)




  • Tualet me dritare




  • Faza e ndërtimit: Karabina




Apartamenti ofron organizim funksional, hapësira të rregullta dhe verandë të bollshme, ideale për relaks ose ambiente rekreative. I përshtatshëm si për banim ashtu edhe për investim.


Çmimi:




  • 800 €/m²




  • Totali: 79,400 €




📞 Për më shumë informacion ose për një vizitë në pronë, kontaktoni.


Ndaje