Shtepi ne shitje Apartament ne Tirane, 2+1, Mobilimi Bosh, pa mobiluar, Pagesa 103,400 Euro.

Shtepi ne shitje | Data: 27/11/2025 10:05 | PostID: 564391
Pagesa 103,400 Euro
Mobilimi 2+1, Bosh, pa mobiluar
Siperfaqa 84 m²
Kati Kati 1, Ashensor 1
Ambienti Apartament
Distanca 3.82 km nga qendra
Deal? Po pranojme agjensi
Vleresim i sistemit ne qera 344 Euro
Qyteti - Zona Tirane - Kamez/Paskuqan/Babrru
Adresa Paskuqan
Lexime
131
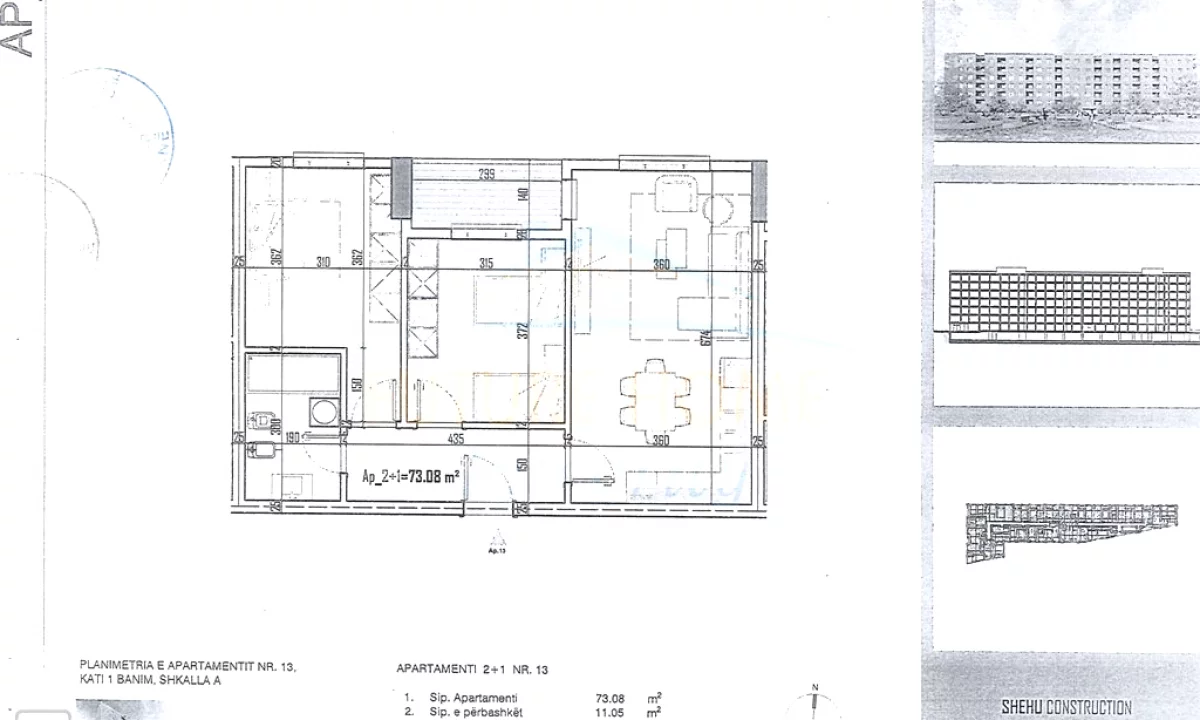
Shitet, Apartament 2+1+Post Parkimi, Paskuqan, Tiranë.
Apartamenti ndodhet tek Shehu Konstruksion.
Informacion mbi apartamentin:
* Sipërfaqja bruto: 84.13 m2.
* Sipërfaqja neto: 73.08 m2.
* Kati 1.
* Ndërtim i ri.
Organizimi:
* Ambient ndenje.
* Ambient gatimi.
* 2 Dhoma gjumi.
* Tualet.
* Ballkon.
Cilësime të tjera:
* Pos parkimi i përfshirë në cmim.
* Mundësi ideale për banim dhe investim.
Për një vizitë në pronë na kontaktoni!
AL60498

Eris Veliu [NR]


Ndaje