Shtepi ne shitje Apartament ne Korce, 3+1, Mobilimi Bosh, pa mobiluar, Pagesa 314,602 Euro.

Shtepi ne shitje | Data: 26/11/2025 14:51 | PostID: 564219
Pagesa 314,602 Euro
Mobilimi 3+1, Bosh, pa mobiluar
Siperfaqa 217 m²
Kati Kati 3, Ashensor No
Ambienti Apartament
Distanca 1.52 km nga qendra
Deal? Po pranojme agjensi
Vleresim i sistemit ne qera 1068 Euro
Qyteti - Zona Korce - Qender
Adresa Parku Rinia Korce, Albania
Lexime
334
✦ DETAJET E PRONËS:
─────────────
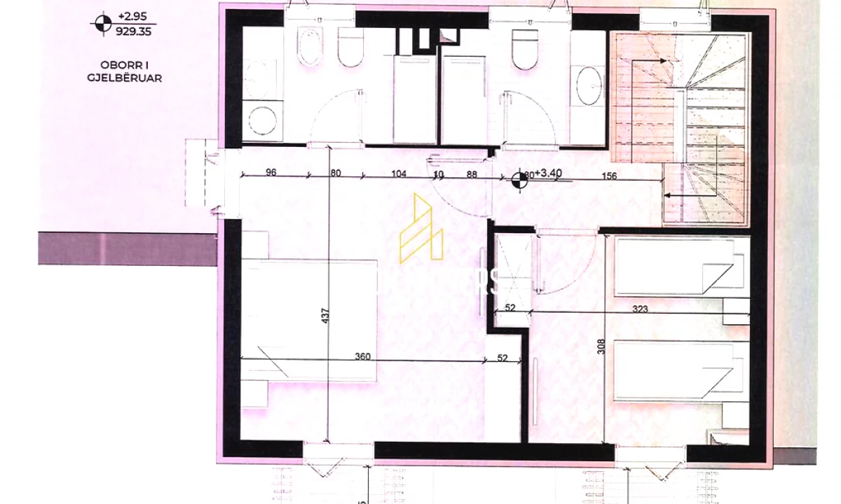
• Tipologji: Vilë 3-katëshe + 1 kat nëntokë
• Dhoma gjumi: 3
• Tualete: 4
• Sallon + Kuzhinë: 1

• Sipërfaqe kati nëntokë: 28.77 m²
• Sipërfaqe kati përdhe: 55.12 m²
• Sipërfaqe kati i parë: 56.17 m²
• Sipërfaqe kati nënçati: 56.17 m²

• Sipërfaqe totale ndërtimi: 216.56 m²
• Sipërfaqe parcelë: 227.96 m²

• Lokacioni: MALI I THATË, Korçë

✦ ORGANIZIMI I BRENDSHËM:
──────────────────
• Sallon i bollshëm me kuzhinë
• 3 dhoma gjumi
• 4 tualete
• Kat nëntokë funksional për depo, lavanderi ose aktivitete të ndryshme
• Kat nënçati i përshtatshëm për studio, ambient relaksimi ose përdorim fleksibël

✦ KARAKTERISTIKAT:
────────────
• Vilë e ndërtuar me standarde të larta
• Organizim funksional në katër nivele
• Ambient i qetë dhe i përshtatshëm për banim familjar afatgjatë
• Zonë në zhvillim me potencial investimi

✦ ZONA:
────
Vila ndodhet në Mali i Thatë – Korçë, një zonë e qetë, me ajër të pastër dhe infrastrukturë në zhvillim. Ideale për familje që kërkojnë komoditet, privatësi dhe një ambient të shëndetshëm banimi.

✦ ÇMIMI:
────
• 314.602€
Ndaje