Shtepi ne shitje Apartament ne Tirane, 2+1, Mobilimi Bosh, pa mobiluar, Pagesa 279,300 Euro.

Shtepi ne shitje | Data: 15/11/2025 13:27 | PostID: 561177
Pagesa 279,300 Euro
Mobilimi 2+1, Bosh, pa mobiluar
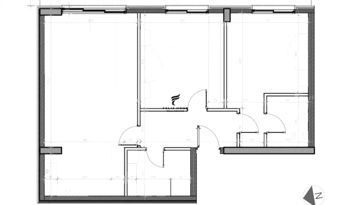
Siperfaqa 110 m²
Kati Kati 3, Ashensor 1
Ambienti Apartament
Distanca 5.82 km nga qendra
Deal? Po pranojme agjensi
Vleresim i sistemit ne qera 986 Euro
Qyteti - Zona Tirane - Sauk/Qendra TEG
Adresa TEG TIRANE
Lexime
44
SHITET APARTAMENT
•2+1+2
•SIPERFAQE TOTALE 110.1 M2
•KATI 0
•PALLAT I RI
•ME ASHENSOR
•2 DHOME GJUMI
•2 TUALET
•VERANDE 59.1
•FAZE GROPE
•TEG
•REZIDENCA UNIT
•ÇMIMI 279.300 EURO
[NR]
FELIZ HOME FI449\A
Ndaje