Shtepi ne shitje Apartament ne Tirane, 2+1, Mobilimi Bosh, pa mobiluar, Pagesa 268,625 Euro.

Shtepi ne shitje | Data: 13/11/2025 17:59 | PostID: 560646
Pagesa 268,625 Euro
Mobilimi 2+1, Bosh, pa mobiluar
Siperfaqa 122 m²
Kati Kati N/D, Ashensor No
Ambienti Apartament
Distanca 5.40 km nga qendra
Deal? Po pranojme agjensi
Vleresim i sistemit ne qera 783 Euro
Qyteti - Zona Tirane - Sauk/Qendra TEG
Adresa Farke
Lexime
164
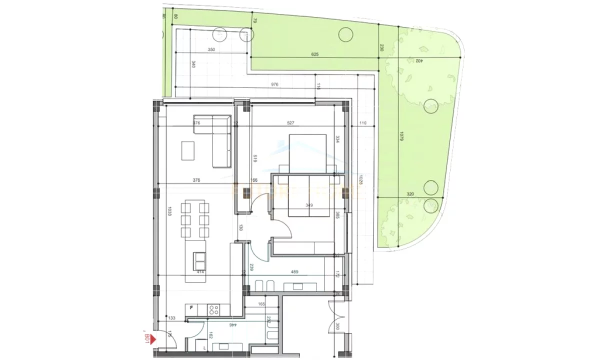
 Sipërfaqe Apartamenti Bruto: 122.3 m²
Sipërfaqe Apartamenti Neto: 108.7 m²
Siperfaqe Oborri: 96.1 m²
Kati: 0

Ambjent Ndenje
Ambjent Ngrenie
Kuzhine
2 Dhoma gjumi
2 Tualete

Struktura e nderteses do te jete e realizuar prej betoni te armuar
Projektuar ne normat evropiane te projektimit antisizmik (EUROCODE 8)
I gjithe perimetri i apartamentit nga jashte, do te jete me fasade te ventiluar
Izolim termik dhe akustik
Aspirim
Parket AC4

Per me shume informacion, na kontaktoni!

Referenca:  ELT59931ES

Ndaje