Shtepi ne shitje Apartament ne Tirane, 1+1, Mobilimi Bosh, pa mobiluar, Pagesa 80,472 Euro.

Shtepi ne shitje | Data: 03/12/2025 09:00 | PostID: 558716
Pagesa 80,472 Euro
Mobilimi 1+1, Bosh, pa mobiluar
Siperfaqa 57 m²
Kati Kati 3, Ashensor 2
Ambienti Apartament
Distanca 1.83 km nga qendra
Deal? Po pranojme agjensi
Vleresim i sistemit ne qera 311 Euro
Qyteti - Zona Tirane - Stacioni trenit/Rruga e Dibres/5 Maji/Medreseja
Adresa Rruga 5 Maji Tirane,Shqiperia
Lexime
824
Shitet Apartament 1+1 te 5 Maji, Rezidenca Ajka!
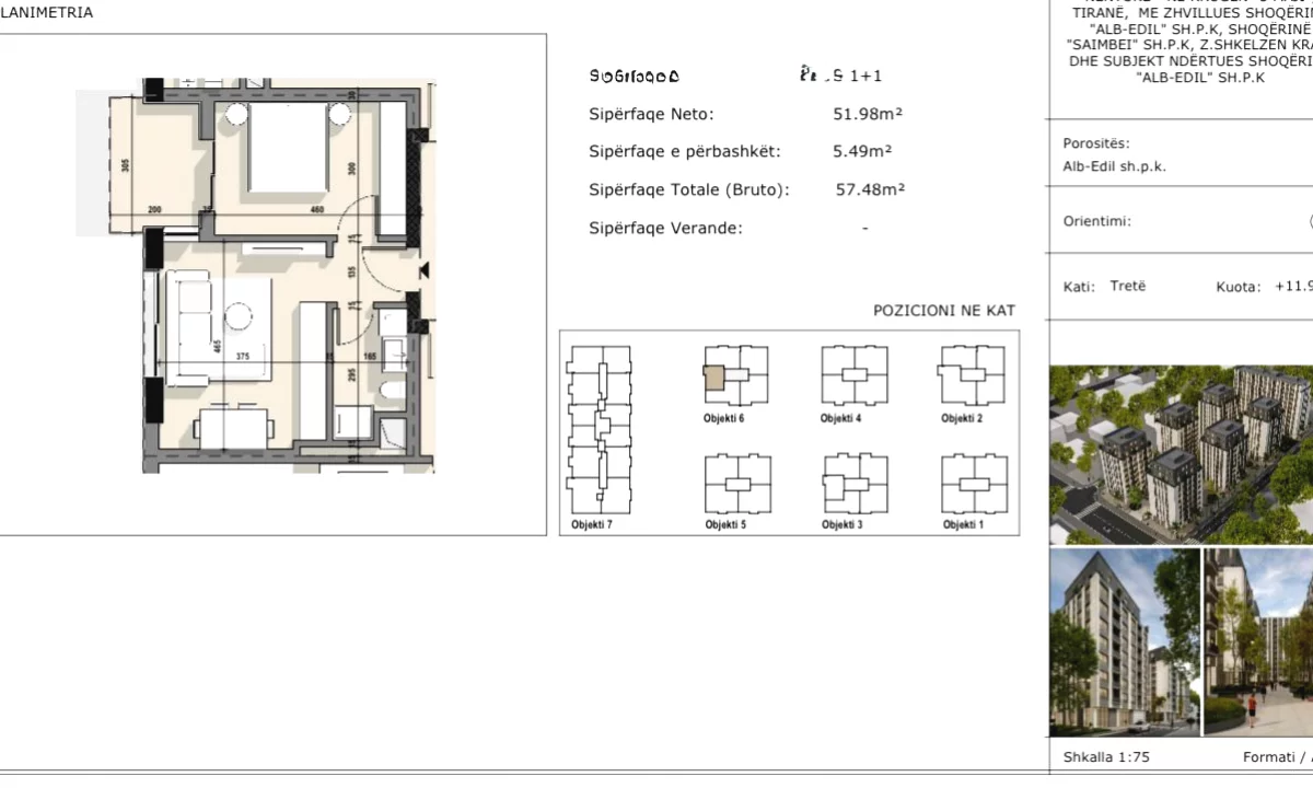
Sipërfaqe bruto: 57.48 m²
Siperfaqe neto: 51.98 m2
Kati: 3
Organizohet ne:
• Sallon ndenjeje,
• Ambient gatimi,
• 1 dhome gjumi,
• Korridor,
• 1 Tualet,
• Ballkon
Përparësitë:
• Investim i sigurt në një nga zonat me zhvillim më të shpejtë në Tiranë.
• Arkitekturë moderne dhe cilësi ndërtimi të lartë.
• Afër rrugëve kryesore, transportit publik, shkollave dhe shërbimeve të përditshme.
Çmimi : 80.472 Euro
📞Na kontaktoni për më shumë informacion ose për një vizitë në pronë ne: [NR]
Disponojme disa opsione te ndryshem 2+1 dhe 1+1 ne kete kompleks, me cmime okazion : 1450 euro/m2
Ndaje