Shtepi ne shitje Apartament ne Tirane, 1+1, Mobilimi Bosh, pa mobiluar, Pagesa 108,900 Euro.

Shtepi ne shitje | Data: 05/11/2025 16:46 | PostID: 558247
Pagesa 108,900 Euro
Mobilimi 1+1, Bosh, pa mobiluar
Siperfaqa 72 m²
Kati Kati 1, Ashensor 1
Ambienti Apartament
Distanca 5.78 km nga qendra
Vleresim i sistemit ne qera 362 Euro
Qyteti - Zona Tirane - Sauk/Qendra TEG
Adresa Farke
Lexime
103
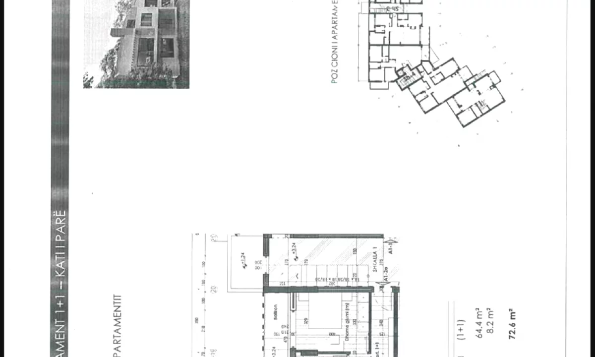
Të dhëna mbi apartamentin :

● Ambient Ndenje + Ambient Gatimi
● Dhome Gjumi
● Tualet
● Kati 1
● Ashensor
● Sipërfaqe totale 72.6 m²
● Siperfaqe neto 64.4 m²
● Siperfaqe e perbashket 8.2 m²

ID:URB3334

Për më shumë informacione ose për një vizitë në këtë pronë na kontaktoni!
Ndaje