Shtepi ne shitje Apartament ne Tirane, 1+1, Mobilimi Bosh, pa mobiluar, Pagesa 84,000 Euro.

Shtepi ne shitje | Data: 30/10/2025 15:06 | PostID: 556743
Pagesa 84,000 Euro
Mobilimi 1+1, Bosh, pa mobiluar
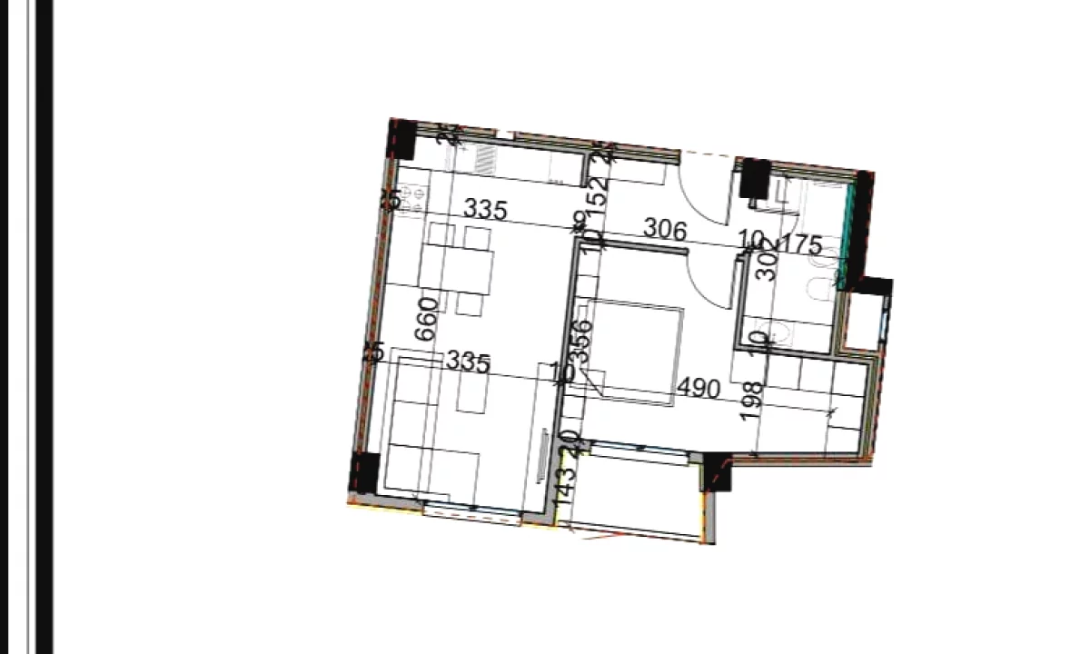
Siperfaqa 70 m²
Kati Kati 3, Ashensor 1
Ambienti Apartament
Distanca 3.82 km nga qendra
Vleresim i sistemit ne qera 300 Euro
Qyteti - Zona Tirane - Kamez/Paskuqan/Babrru
Adresa Paskuqan, Bashkia Kamez, Shqiperia
Lexime
176
Të dhëna mbi apartamentin :

● Ambient Ndenje + Ambient Gatimi
● Dhome Gjumi
● Tualet
● Kati 3
● Ashensor
● Ballkon
● Sipërfaqe 70 m2

ID:URB3320

Për më shumë informacione ose për një vizitë në këtë pronë na kontaktoni!

Ndaje