Shtepi ne shitje Apartament ne Tirane, 2+1, Mobilimi Bosh, pa mobiluar, Pagesa 274,320 Euro.

Shtepi ne shitje | Data: 29/10/2025 13:47 | PostID: 556454
Pagesa 274,320 Euro
Mobilimi 2+1, Bosh, pa mobiluar
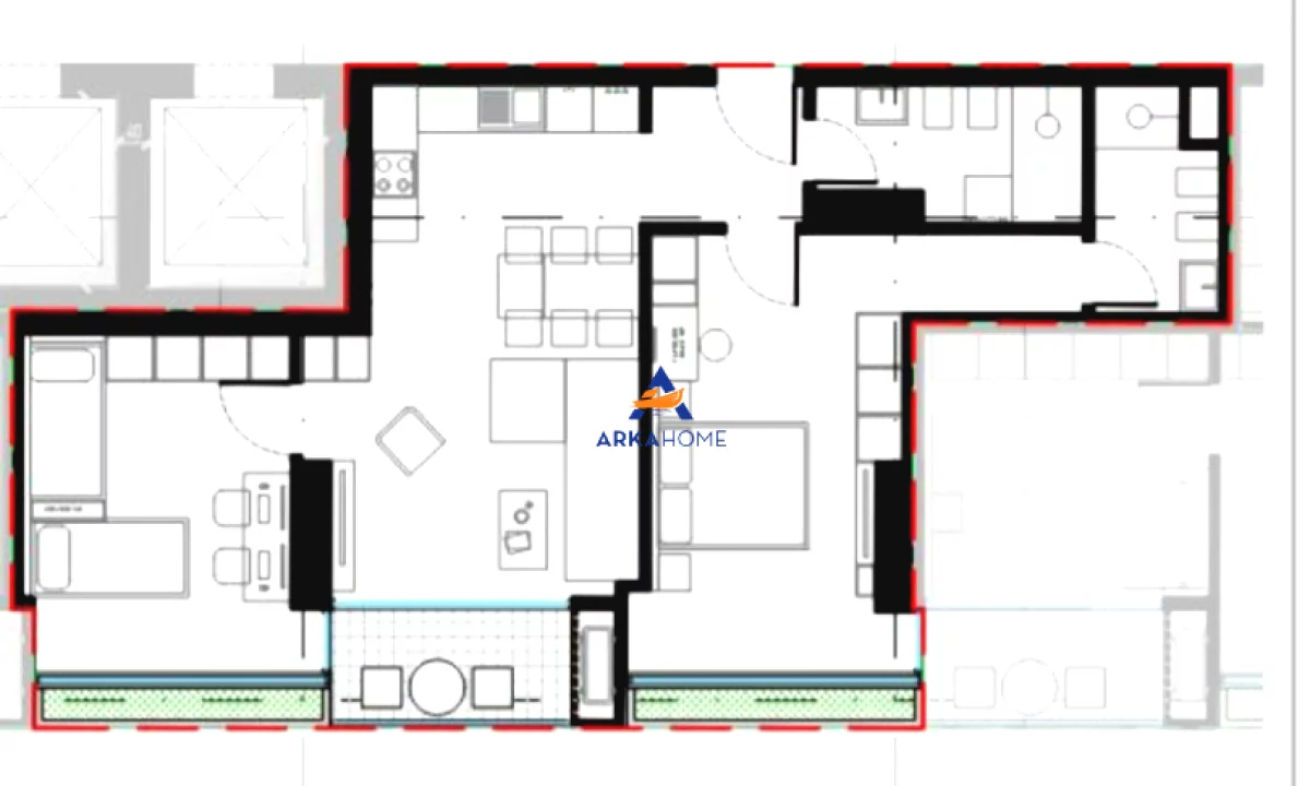
Siperfaqa 114 m²
Kati Kati 3, Ashensor 1
Ambienti Apartament
Distanca 1.42 km nga qendra
Deal? Po pranojme agjensi
Vleresim i sistemit ne qera 1049 Euro
Qyteti - Zona Tirane - Rruga e Durresit/Zogu i zi
Adresa Zogu i Zi, Tirane, Shqiperia
Lexime
108
SHITET APARTAMENT
• 2+1+BALLKON
• ⁠2 TUALETE
• ⁠KATI 3
• ⁠SIPERFAQE 114.30M2
• ⁠NE NJE NGA RESIDENCAT ME COOL TE TIRANES
• ⁠RESIDECA LION 2 ZOG I ZI
• ⁠CMIMI 274.320 EURO
• ⁠ [NR]
• ⁠F10
Ndaje