Shtepi ne shitje Apartament ne Tirane, 1+1, Mobilimi Bosh, pa mobiluar, Pagesa 646,500 Euro.

Shtepi ne shitje | Data: 28/10/2025 12:17 | PostID: 556130
Pagesa 646,500 Euro
Mobilimi 1+1, Bosh, pa mobiluar
Siperfaqa 65 m²
Kati Kati 4, Ashensor 1
Ambienti Apartament
Deal? Po pranojme agjensi
Vleresim i sistemit ne qera 2382 Euro
Qyteti - Zona Tirane - Kamez/Paskuqan/Babrru
Adresa Pakuqan
Lexime
50

Projekti më i ri bashkëkohor pranë Bulevardit të Ri dhe Unazës së Madhe në Paskuqan!
Ringside Residences do të jetë një kompleks modern dhe funksional, që sjell trendin më të ri arkitekturor për një jetesë komode, duke përfituar nga zhvillimet madhore të zonës si: infrastruktura urbanistike, Bulevardi i Ri, sistemimi i Liqenit të Paskuqanit dhe në perspektivë, krijimi i Pyllit Orbital.
Vendndodhja strategjike e kompleksit ofron lidhje të drejtpërdrejtë me Bulevardin e Ri dhe Liqenin e Paskuqanit, duke e bërë këtë një investim të shkëlqyer.

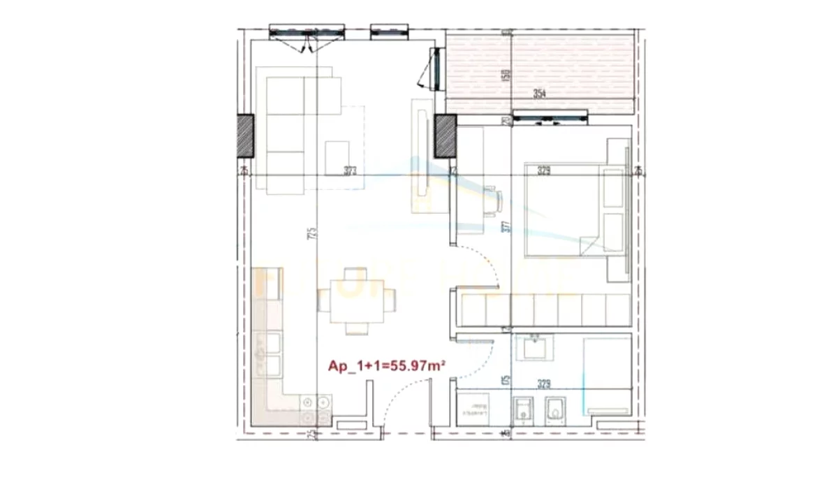
Informacion mbi apartamentin:
• Tipologjia: 1+1
• Sipërfaqe bruto: 64.65 m²
• Sipërfaqe neto: 55.97 m²
• Sipërfaqe e përbashkët: 8.68 m²
• Kati: 4 banim

Organizimi i brendshëm:
• Sallon ndenje
• Ambient gatimi
• Dhoma gjumi
• Tualet

Cilësime të tjera:
• Kubaturë e rregullt
• Ndriçim dhe ajrosje natyrale në çdo ambient
• Pallat me ashensor
• Lokacion perfekt
• Në fazë ndërtimi

Për më shumë informacion ose një vizitë në projekt, na kontaktoni!

  • Referenca:

    UNA57680


Ndaje