Shtepi ne shitje Apartament ne Tirane, 3+1, Mobilimi Bosh, pa mobiluar, Pagesa 378,400 Euro.

Shtepi ne shitje | Data: 20/10/2025 14:47 | PostID: 554269
Pagesa 378,400 Euro
Mobilimi 3+1, Bosh, pa mobiluar
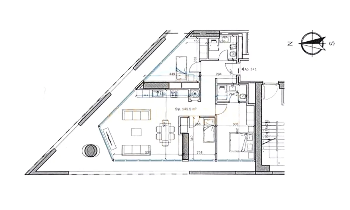
Siperfaqa 189 m²
Kati Kati 21, Ashensor 1
Ambienti Apartament
Distanca 2.59 km nga qendra
Deal? Po pranojme agjensi
Vleresim i sistemit ne qera 1243 Euro
Qyteti - Zona Tirane - Spitali QSUT/Xhamlliku/Kinostudio
Adresa Tirana Tower
Lexime
26
Sipërfaqja e apartamentit (bruto): 189.2 m²
Sipërfaqja e apartamentit (Neto): 145.5 m²
Kati 21 teknik

Ambient ndenje
Ambient gatimi
3 Dhoma gjumi
2 Tualete

Orientimi : Veri-Perëndim
Ndërtim i ri
Inovacion në përdorimin e materialeve dhe teknikave ndërtimore
Ashensor

Për një vizitë në pronë, na kontaktoni!

Referenca:  ELT58862ES

Ndaje