Shtepi ne shitje Apartament ne Tirane, 3+1, Mobilimi Bosh, pa mobiluar, Pagesa 145,000 Euro.

Shtepi ne shitje | Data: 20/10/2025 14:33 | PostID: 554263
Pagesa 145,000 Euro
Mobilimi 3+1, Bosh, pa mobiluar
Siperfaqa 110 m²
Kati Kati 6, Ashensor 2
Ambienti Apartament
Distanca 3.97 km nga qendra
Deal? Po pranojme agjensi
Vleresim i sistemit ne qera 476 Euro
Qyteti - Zona Tirane - Zone Periferike/Aeroport
Adresa CASA ITALIA
Lexime
92
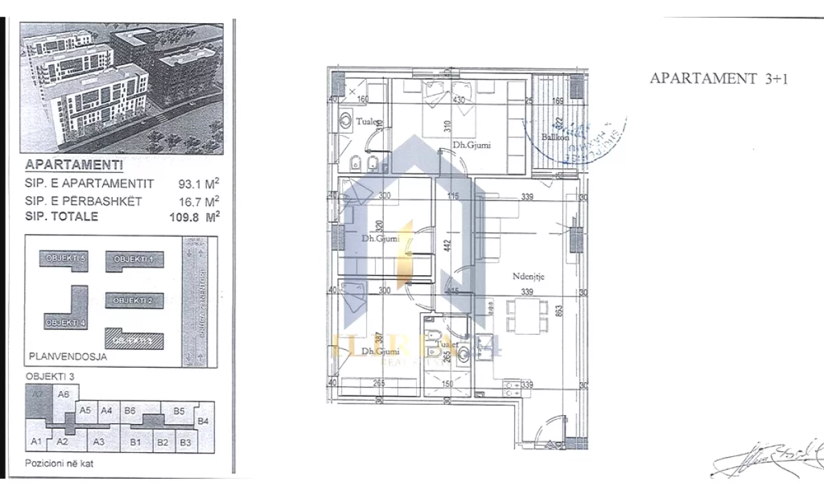
Apartament 3+1 per shitje, tek “Tirana Entry 2”

Apartamenti ndodhet ne katin e VII-te te nje pallati te ri me ashensor

Ka nje siperfaqe bruto prej 109.8 m² dhe neto 93.1 m2

Aktualisht eshte ne faze perfundimtare

Apartamenti organizohet ne sallon, dhome ndenje , tre dhoma gjumi, dy tualete, dhe nje ballkon

Cmimi I shitje se apartamentit: 1320 euro/m2

Cmimi I shitjes: 145.000 euro
Ndaje