Shtepi ne shitje Apartament ne Tirane, Garsoniere, Mobilimi Bosh, pa mobiluar, Pagesa 81,424 Euro.

Shtepi ne shitje | Data: 03/10/2025 10:50 | PostID: 550588
Pagesa 81,424 Euro
Mobilimi Garsoniere, Bosh, pa mobiluar
Siperfaqa 51 m²
Kati Kati 4, Ashensor 1
Ambienti Apartament
Deal? Po pranojme agjensi
Vleresim i sistemit ne qera 300 Euro
Qyteti - Zona Tirane - Sauk/Qendra TEG
Adresa REZIDENCA \PORTA E RE\ SAUK
Lexime
257
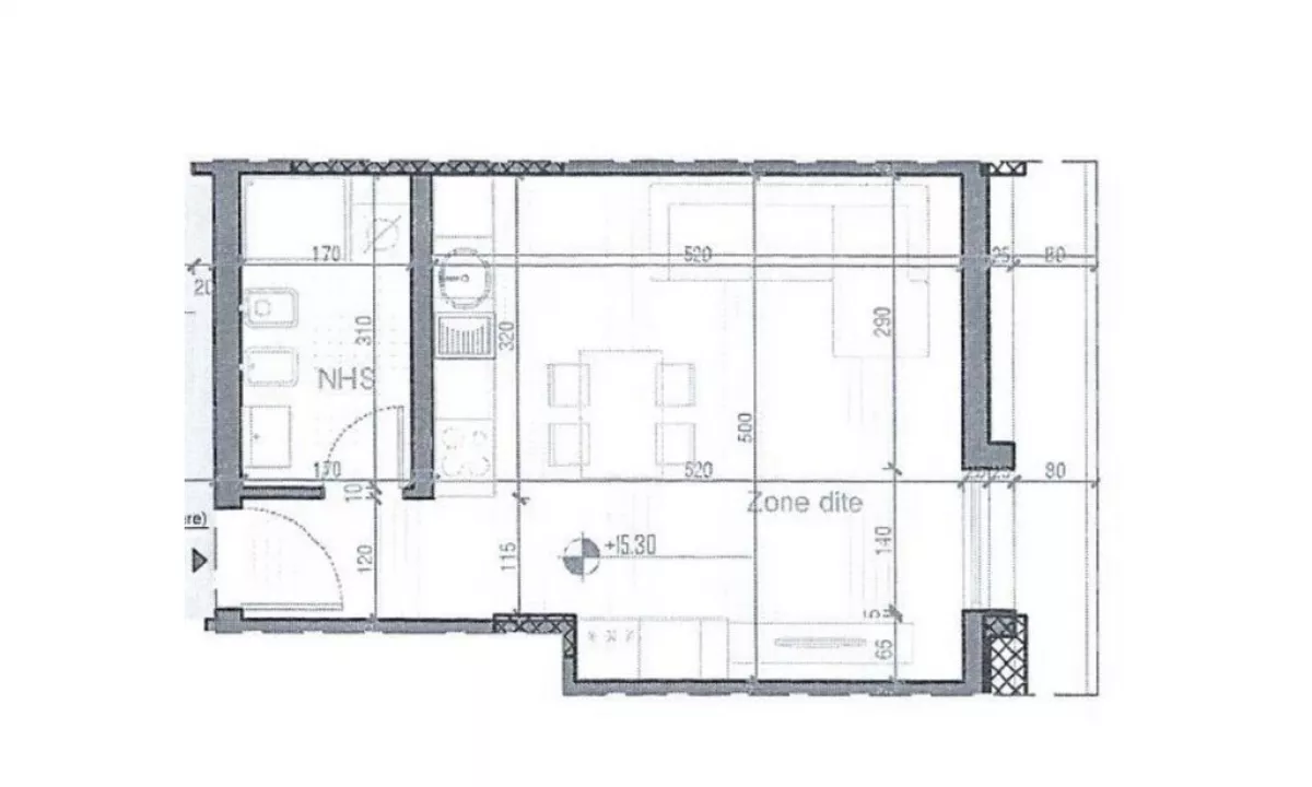
PER SHITJE GARSONIERE TEK REZIDENCA "PORTA E RE" SAUK !

Apartamenti ndodhet ne katin e katert banim. Ka nje siperfaqe neto prej 43.4 m2 dhe siperfaqe totale prej 51.33m2 . (shiko planimetrine)

Rezidenca “Porta e Re”, Sauk – një kompleks modern banimi që ofron qetësi, gjelbërim dhe siguri, vetëm pak minuta nga qendra e Tiranës. Apartamente me organizim cilësor, ndriçim natyral dhe pamje të hapura, të rrethuar nga infrastrukturë moderne dhe ambiente rekreative. Një zgjedhje perfekte për jetesë komode dhe investim afatgjatë.

Per me shume informacion apo nje vizite ne prone na kontaktoni.
Ndaje