Shtepi ne shitje Vila Luksoze ne Tirane, 3+1, Mobilimi Bosh, pa mobiluar, Pagesa 430,000 Euro.

Shtepi ne shitje | Data: 19/03/2025 12:52 | PostID: 500025
Pagesa 430,000 Euro
Mobilimi 3+1, Bosh, pa mobiluar
Siperfaqa 274 m²
Kati Kati 3, Ashensor No
Ambienti Vila Luksoze
Distanca 5.87 km nga qendra
Vleresim i sistemit ne qera 1483 Euro
Qyteti - Zona Tirane - Sauk/Qendra TEG
Adresa Lunder
Lexime
17
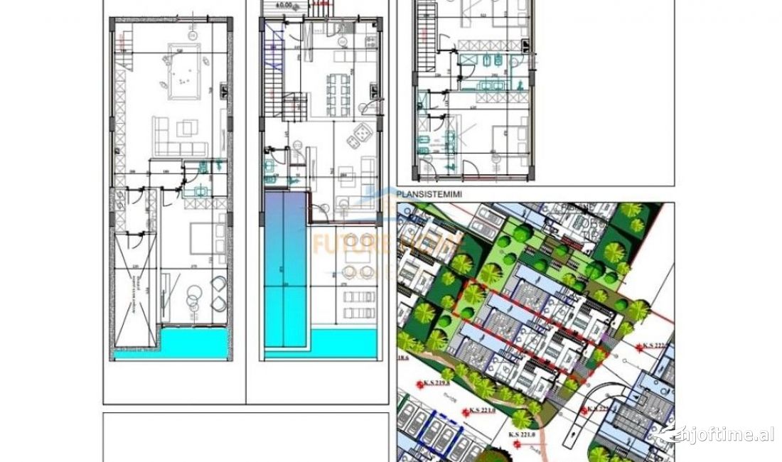
Shitet Vilë me Pishinë në Rezidencën Flowers Hill, në zonën e Lundrës pranë TEG-ut.

Info mbi pronen:
• Strukturë 2-katëshe + 1 kat nëntokë,
• Sip ndërtimi (neto) prej 274m2,
• Sip verande + pishinë prej 57 m2,
• Sip e truallit 177 m2,
• Sip parkimi (i hapur) prej 34 m2.

• Kati -1 organizohet në një studio, një dhomë gjumi, një tualet dhe një ambient teknik poshtë pishinës.
• Kati 0 organizohet në një sallon ndenjie, kuzhinë të vecuar, një tualet dhe një verandë + pishinë.
• Kati 1 organizohet në 2 dhoma gjumi dhe 2 tualete.

Flowers Hill Residence ofron komoditet dhe qetësi maksimale, shumë pranë natyrës dhe ajrit të pastër.

Për më shumë informacion na kontaktoni!
Ndaje