Shtepi ne shitje Apartament ne Tirane, 2+1, Mobilimi Bosh, pa mobiluar, Pagesa 224,100 Euro.

Shtepi ne shitje | Data: 17/03/2025 16:21 | PostID: 498046
Pagesa 224,100 Euro
Mobilimi 2+1, Bosh, pa mobiluar
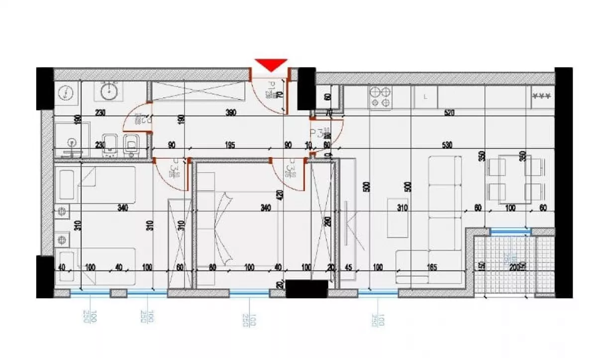
Siperfaqa 83 m²
Kati Kati 2, Ashensor 1
Ambienti Apartament
Distanca 1.97 km nga qendra
Vleresim i sistemit ne qera 867 Euro
Qyteti - Zona Tirane - Komuna e parisit
Adresa Kristal Center
Lexime
64
Shitet: 2+1+Ballkon ( 83m2) šŸ“Kristal Center || Ne Faze Karabinaje, K5 - Afati Perfundimit: DHJETOR 2026 

Mundesi Blerje me Keste ( e ndare ne 4 keste [NR] )

Q5092

Ndarja e Ambienteve:

- 1 Salloni + Kuzhina
- 2 Dhoma Gjumi
- 1 Tualet
- 1 Ballkon

- ⁠Kati: 1 Banim

- Sip. Totale: 82,6m2
- Sip. Neto: 69,5m2
- Sip. Perbashket: 13,1m2

Cilesi e Larte e Ndertimi
Vendndodhje Premium
Orientim: JUG - LINDJE

Cmimi: 224,100 Euro

Tel ose WhatsApp:  [NR]

Ndaje