Shtepi ne shitje Apartament ne Tirane, 3+1, Mobilimi Bosh, pa mobiluar, Pagesa 201,900 Euro.

Shtepi ne shitje | Data: 11/03/2025 12:01 | PostID: 492869
Pagesa 201,900 Euro
Mobilimi 3+1, Bosh, pa mobiluar
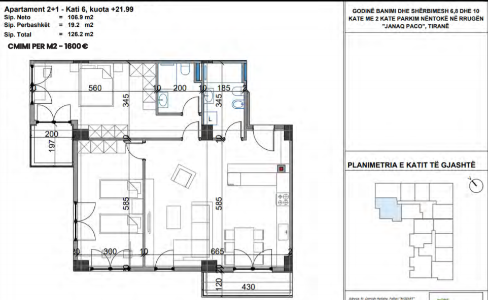
Siperfaqa 126 m²
Kati Kati 6, Ashensor 2
Ambienti Apartament
Distanca 2.44 km nga qendra
Vleresim i sistemit ne qera 663 Euro
Qyteti - Zona Tirane - 21 Dhjetori/Rruga e Kavajes
Adresa Rruga Javer Malo Tirane,Shqiperia
Lexime
29
Shitet apartament 3+1+2  Viva Vomplex
  
Siperfaqe totale prej: 126.2 m2
Orientim : Jug - Perendim 
Kati :6  Banim 

Apartamenti organizohet ne: 

* Dhome ndenje + dhome gatimi
* 3 dhoma gjumi
* 2 tualet
* Ballkon 


*Objekti eshte ne faze ndertimi (Karabina)
*Ndodhet prane Unazes se madhe dhe prane Rr Kavajes 

Vendndodhja: Rr Javer Malo , prane qendres Globe 
Cmimi per shitje:  201,900 euro

Screenshot-2025-03-11-115822.png, Screenshot-2025-03-11-115753.png, Screenshot-2025-03-11-115216.png,
Ndaje