Shtepi ne shitje Apartament ne Tirane, 1+1, Mobilimi Bosh, pa mobiluar, Pagesa 71,300 Euro.

Shtepi ne shitje | Data: 20/02/2025 11:48 | PostID: 476522
Pagesa 71,300 Euro
Mobilimi 1+1, Bosh, pa mobiluar
Siperfaqa 60 m²
Kati Kati 6, Ashensor 2
Ambienti Apartament
Distanca 6.34 km nga qendra
Vleresim i sistemit ne qera 244 Euro
Qyteti - Zona Tirane - Zone Periferike/Aeroport
Adresa Rruga Gryka E Kacanikut Kamez,Shqiperia
Lexime
31
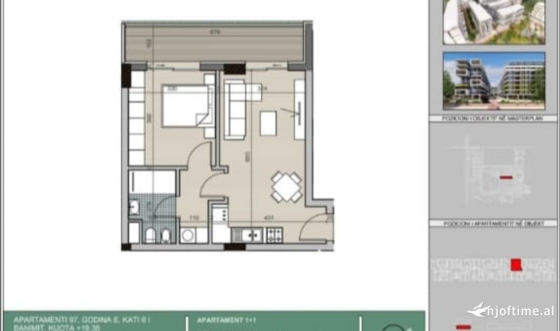
🏠Shitet apartament 1+1
📍UNIVERS CITY
🏗️Kati i 6 banim
⏰ Faze suvatimi(po behet kapota)
⏰Perfundon per rreth 1 vit
🌅Orientimi veri
📐Sip Bruto 73.53m²
📐Sip Neto 60.22m²
💸Cmimi 970€/m².

Per me teper informacion me kontaktoni

Ndaje