Shtepi ne shitje Apartament ne Tirane, 2+1, Mobilimi Bosh, pa mobiluar, Pagesa 155,730 Euro.

Shtepi ne shitje | Data: 14/02/2025 14:24 | PostID: 471721
Pagesa 155,730 Euro
Mobilimi 2+1, Bosh, pa mobiluar
Siperfaqa 88 m²
Kati Kati 6, Ashensor 1
Ambienti Apartament
Distanca 1.64 km nga qendra
Vleresim i sistemit ne qera 583 Euro
Qyteti - Zona Tirane - Stacioni trenit/Rruga e Dibres/5 Maji/Medreseja
Adresa Rruga Siri Kodra ,Shqiperia
Lexime
13
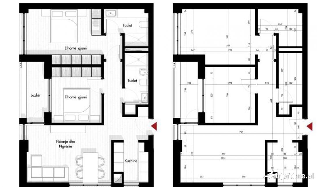
Shitet, Apartament 2+1+2, Rruga Siri Kodra , Tiranë. 

Informacion mbi apartamentin: 
• Sipërfaqja bruto: 87,91 m2. 
• Sipërfaqja neto: 103,82 m2. 
• Kati 6.
• Fazë ndërtimi.

Organizimi: 
• Ambient ndenje. 
• Ambient gatimi.
• 2 Dhoma gjumi. 
• 2 Tualete. 
• Ballkon. 

Cilësime të tjera: 
• Ndërtim cilesor 
• Vendodhje ideale e cila të ofron gjithë fasilitetet e nevojshme. 

Për një vizitë në pronë na kontaktoni!


OPP49501

Ndaje