Shtepi ne shitje Apartament ne Tirane, 1+1, Mobilimi Bosh, pa mobiluar, Pagesa 63,900 Euro.

Shtepi ne shitje | Data: 16/01/2025 10:57 | PostID: 444275
Pagesa 63,900 Euro
Mobilimi 1+1, Bosh, pa mobiluar
Siperfaqa 60 m²
Kati Kati 2, Ashensor 2
Ambienti Apartament
Distanca 6.11 km nga qendra
Vleresim i sistemit ne qera 235 Euro
Qyteti - Zona Tirane - Kamez/Paskuqan/Babrru
Adresa Univers City
Lexime
29
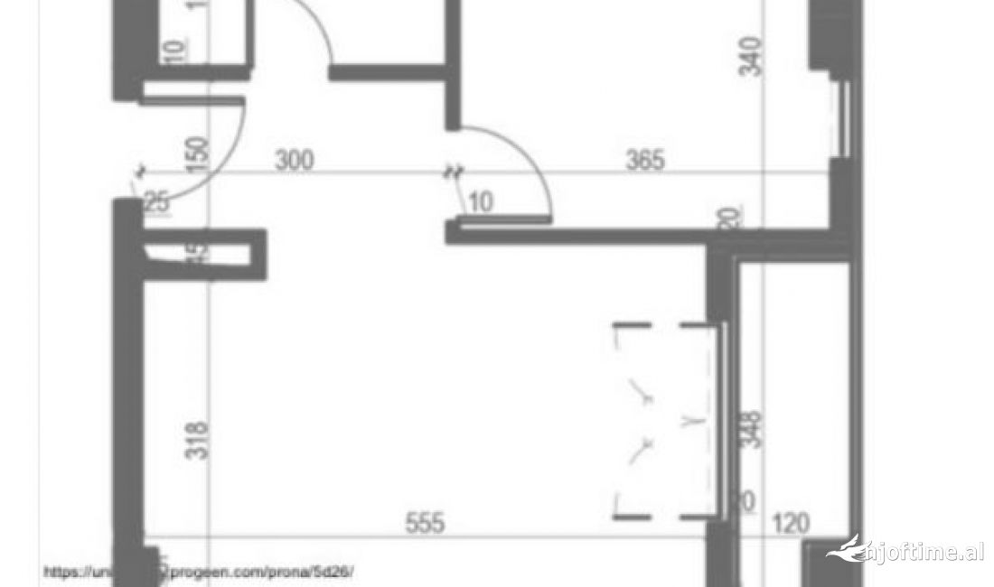
šŸ“ŒShitet apartament 1+1

Siperfaqe totale prej: 60.73m

Informacion mbi apartamentin: 

- Dhome ndenje + gatimi
- 1 dhome gjumi
- 1tualet
- 1ballkone 
- Orientimi jug 
  Pritet te perfundoje ne shtator 2025
 
 Ndodhet ne katin 2 banim 



šŸ“Vendndodhja, Univers City


Cmimi per shitje :63.900 €

Ndaje