Shtepi ne shitje Apartament ne Tirane, 1+1, Mobilimi Bosh, pa mobiluar, Pagesa 95,840 Euro.

Shtepi ne shitje | Data: 09/01/2025 11:37 | PostID: 440168
Pagesa 95,840 Euro
Mobilimi 1+1, Bosh, pa mobiluar
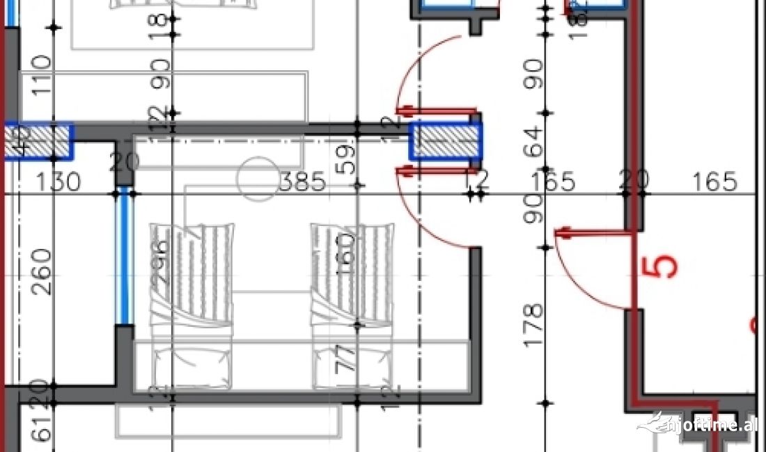
Siperfaqa 79 m²
Kati Kati 2, Ashensor 2
Ambienti Apartament
Distanca 3.02 km nga qendra
Vleresim i sistemit ne qera 343 Euro
Qyteti - Zona Tirane - Kamez/Paskuqan/Babrru
Adresa Paskuqan
Lexime
35
🏡APARTAMENT NE SHITJE 2+1 NE PASKUQAN.

📍NE PASKUQAN/KAMEZ
📐 Sip.95.84 m2
CMIMI 1000 Euro/m2
💶95.840 Euro
 ✅ Me sip neto,organizohet korridor, sallon + ambient gatimi,  2 dhoma gjumi, 1 tualet, 1 ballkon. 
📌Ne katin e 2,pallat i ri .
✅ Aparamenti ka 2 ashensore.

⚜MUNDESI IDEALE PER BANIM !

 RFS REAL ESTATE 

Ndaje