Shtepi ne shitje Apartament ne Tirane, 3+1, Mobilimi Bosh, pa mobiluar, Pagesa 398,160 Euro.

Shtepi ne shitje | Data: 07/11/2024 14:54 | PostID: 396708
Pagesa 398,160 Euro
Mobilimi 3+1, Bosh, pa mobiluar
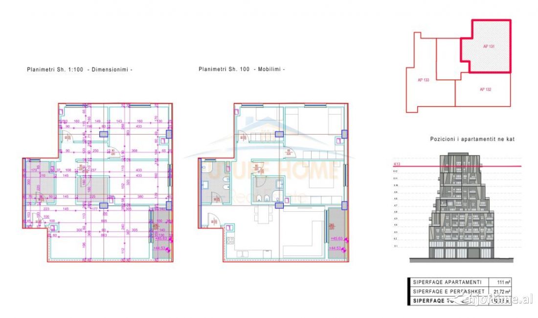
Siperfaqa 127 m²
Kati Kati 13, Ashensor 2
Ambienti Apartament
Distanca 0.61 km nga qendra
Vleresim i sistemit ne qera 1415 Euro
Qyteti - Zona Tirane - Stacioni trenit/Rruga e Dibres/5 Maji/Medreseja
Adresa Rruga e Barrikadave Tirane,Shqiperia
Lexime
23
Apartamenti eshte me siperfaqe neto 111 m2 dhe bruto 132.7 m2 . Ne kat te 13, ndertim i ri ne faze perfundimtare. Per te pare pronen me kontaktoni!
Ndaje