Shtepi ne shitje Apartament ne Tirane, 1+1, Mobilimi Bosh, pa mobiluar, Pagesa 180,750 Euro.

Shtepi ne shitje | Data: 09/11/2024 11:38 | PostID: 385817
Pagesa 180,750 Euro
Mobilimi 1+1, Bosh, pa mobiluar
Siperfaqa 63 m²
Kati Kati 6, Ashensor 1
Ambienti Apartament
Distanca 1.31 km nga qendra
Vleresim i sistemit ne qera 650 Euro
Qyteti - Zona Tirane - 21 Dhjetori/Rruga e Kavajes
Adresa 21 Dhjetori
Lexime
73

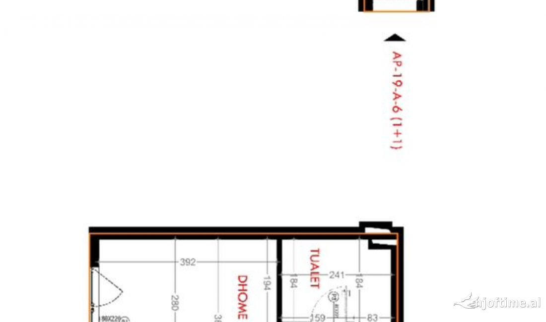
Disponojme apartament 1+1, per Shitje Apartamenti ndodhet tek 21 Dhjetori, Tirane Informacion mbi apartamentin: â€¢ Kati 6 â€¢ Sipërfaqja e apartamentit: 72.3(bruto) â€¢ Siperfaqja e apartamentit:63 (neto) Apartamenti disponon: â€¢ Sallonin e Ndenjes dhe Ambjent gatimi â€¢ 1 Dhome gjumi â€¢ 1Tualet â€¢ 1 Ballkon Cilësime të tjera: â€¢ Pallati eshte ne faze ndertimi, po vendoset fasada e jashtme â€¢ Disponon ashensor â€¢ Disponon punime cilësore â€¢ Zone banimi preferenciale â€¢ Ideal per banim familjar â€¢ Për ta vizituar na kontaktoni!

Ndaje