Shtepi ne shitje Apartament ne Tirane, 2+1, Mobilimi Bosh, pa mobiluar, Pagesa 208,100 Euro.

Shtepi ne shitje | Data: 03/11/2024 14:08 | PostID: 348266
Pagesa 208,100 Euro
Mobilimi 2+1, Bosh, pa mobiluar
Siperfaqa 126 m²
Kati Kati 16, Ashensor 2
Ambienti Apartament
Distanca 2.28 km nga qendra
Vleresim i sistemit ne qera 683 Euro
Qyteti - Zona Tirane - Rruga e Durresit/Zogu i zi
Adresa Rruga Dritan Hoxha Tirane,Shqiperia
Lexime
111
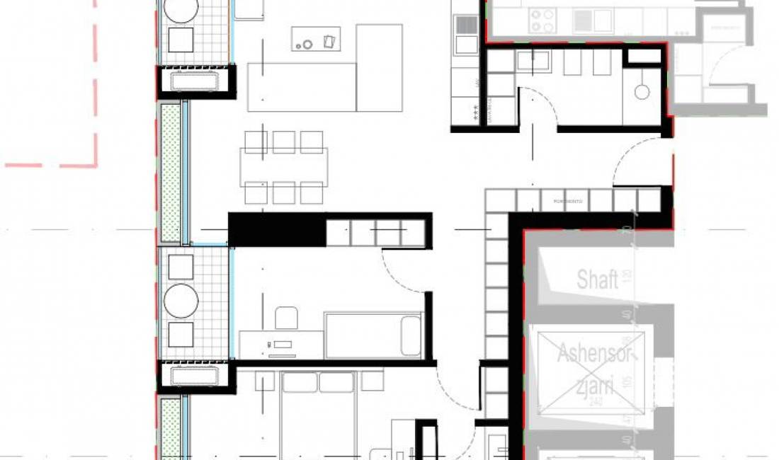
Informacion mbi pronën: 
• Siperfaqe Bruto : 126.10 m2 
• Siperfaqe Neto : 105.08 m2
• Kati i 15 banim 
• 2 Dhome gjumi 
• 2 Tualet 
• 2 Ballkone 
• Orientimi perendim
 â€¢ Bosh 
• Me ashensor 
• Në proces ndërtimi
Projekti inovator dhe elitar pozicionohet në një pikë strategjike dhe me akses të menjëhershëm me të gjithë zonat kryesore të Tiranës. Distanca prej 1.4 km nga qendra e kryeqytetit e bën këtë projekt të jetë investim si koherent ashtu edhe vizionar. Lion 2, kjo kulle e perbere nga 34 kate eshte nje nderthurje midis oazit te gjelbert dhe fasadave te xhamit.

Ndaje