Apartment for sale in Vlora Garsoniere, Emty, 36.18 km from city center

House for Sale | Data: 24/10/2025 22:49 | PostID: 555431
Payment 106,700 Euro
Furniture Garsoniere, Emty
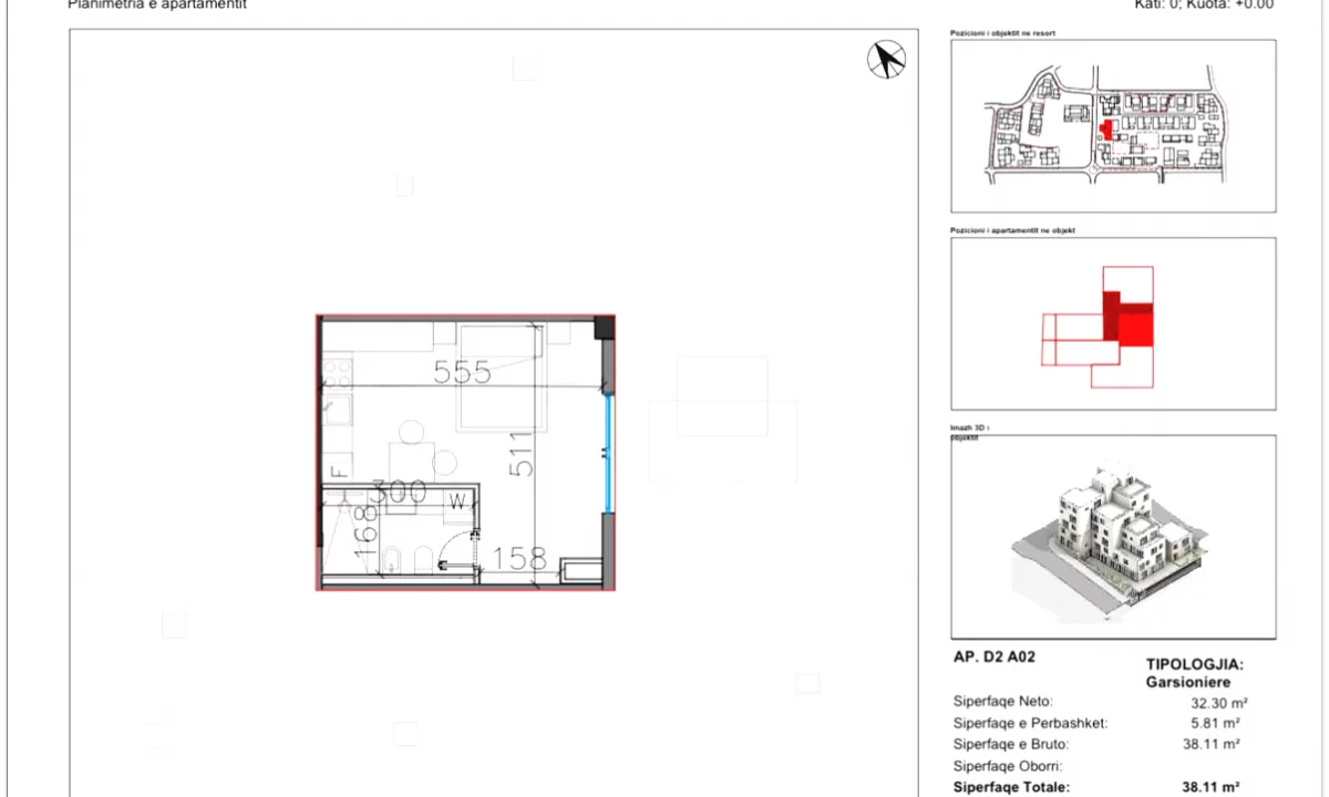
Square Feet 38 m²
Floor Floor N/D, Elevator No
Room | Kitchen Apartment
Distances 36.18 km from city center
Can be rented monthly approx 292 Euro
City - Zone Vlora - Lungomare
Address Dhermi, Qarku i Vlores, Shqiperia
Reads
163
The House for Sale is located in Vlora city, in the "Lungomare" area and is 36.18 km from city center.
This House for Sale is on the 0 floor and has an area of 38 m2, Garsoniere (Room | Kitchen) and the furniture for this house is "Emty"
Share