SHITET ME KREDI DERI NE 80% NJESI SHERBIMI NE REZIDENCA NOKIA 90.000Euro*
Business Property in Sale
6412 Announcements
Date: 13/02/2026
15:09
| Payment | 90,000 Euro |
|---|---|
| Square Feet | 21.00 with 1 Toilete |
| Floor | Floor 1 with 1 Elevator |
| Deal? | Po pranojme agjensi |
| Distances | 2.35 km from city center |
| City - Zone | Tirana - Ali Demi/Tregu Elektrik |
| Address | Rruga Mihal Grameno Tirane,Shqiperia |
|
PostID: 581567 Reads:25 |
Data: 13/02/2026
Ora: 15:09
|
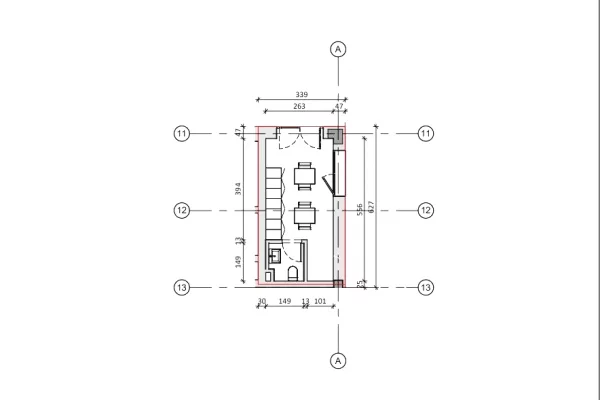
Njesi Sherbimi në shitje në Nokia Residence – Rezidencë e re nga Kontakt, Ali Demi, Tiranë | Mundësi blerjeje me kredi deri në 80%
Ofrohet për shitje njesia e sherbimit modern në Nokia Residence, një projekt bashkëkohor në zonën Ali Demi, Tiranë.
Prona është e përshtatshme për financim me kredi bankare deri në 80% dhe përfaqëson një zgjedhje ideale si për banim familjar ashtu edhe për investim afatgjatë në një rezidencë të re me standarde të larta ndërtimi.
📐 Të dhëna kryesore të pronës:
* Tipologjia: Njesi Sherbimi
* Sipërfaqe totale: 25.7 m²
* Sipërfaqe e brendshme: 20.9 m²
* Kati: 1
* Orientimi: Lindje – Perëndim
* 1 Tualet me dritare
* Lartësia e katit: 2.78 m
✨ Karakteristika & Cilësi Ndërtimi:
* Fasadë termoizoluese dhe eficiencë energjetike
* Dritare alumini termik dhe hidroizolim i plotë
* Konstruksion antisizmik
* Instalime për kondicionim multisplit
* Tuba multistrat për furnizim uji
* Dyer të brendshme gjermane dhe derë e blinduar
* Laminat cilësor AC5 dhe pllaka porcelani në tualet
* Ambiente të gjelbra dhe hapësira relaksi në rezidencë
📍 Vendndodhja strategjike në Ali Demi ofron akses të shpejtë me qendrën e Tiranës dhe shërbime të shumta pranë si farmaci, stacion autobusi, markete dhe ambiente sociale.
💰 Çmimi: 90,000 €
🏦 Mundësi blerjeje me kredi bankare deri në 80%.
📩 Na kontaktoni për planimetrinë, detaje shtesë dhe vizitë në pronë.
#NokiaResidence #ApartamentNeShitje #Tirane #RezidenceRe #NjesiSherbimi #KrediBankare #Kontakt#shitje #shitjeapartament #rezidencaNokia #NokiaResidence #apartament2plus1 #21Nokia
#BibaProperty #BibaPropertyShitje #cmimi90000Euro #90000Euro #lokacionPremium
#lokacionStrategjik #lokacionQendror #lokacionIdeal #rezidencaNeShitje #apartamentNeRezidenca
#shitjeNokia #proneNokia #investimNokia #BibaProperty#Nokia
Ofrohet për shitje njesia e sherbimit modern në Nokia Residence, një projekt bashkëkohor në zonën Ali Demi, Tiranë.
Prona është e përshtatshme për financim me kredi bankare deri në 80% dhe përfaqëson një zgjedhje ideale si për banim familjar ashtu edhe për investim afatgjatë në një rezidencë të re me standarde të larta ndërtimi.
📐 Të dhëna kryesore të pronës:
* Tipologjia: Njesi Sherbimi
* Sipërfaqe totale: 25.7 m²
* Sipërfaqe e brendshme: 20.9 m²
* Kati: 1
* Orientimi: Lindje – Perëndim
* 1 Tualet me dritare
* Lartësia e katit: 2.78 m
✨ Karakteristika & Cilësi Ndërtimi:
* Fasadë termoizoluese dhe eficiencë energjetike
* Dritare alumini termik dhe hidroizolim i plotë
* Konstruksion antisizmik
* Instalime për kondicionim multisplit
* Tuba multistrat për furnizim uji
* Dyer të brendshme gjermane dhe derë e blinduar
* Laminat cilësor AC5 dhe pllaka porcelani në tualet
* Ambiente të gjelbra dhe hapësira relaksi në rezidencë
📍 Vendndodhja strategjike në Ali Demi ofron akses të shpejtë me qendrën e Tiranës dhe shërbime të shumta pranë si farmaci, stacion autobusi, markete dhe ambiente sociale.
💰 Çmimi: 90,000 €
🏦 Mundësi blerjeje me kredi bankare deri në 80%.
📩 Na kontaktoni për planimetrinë, detaje shtesë dhe vizitë në pronë.
#NokiaResidence #ApartamentNeShitje #Tirane #RezidenceRe #NjesiSherbimi #KrediBankare #Kontakt#shitje #shitjeapartament #rezidencaNokia #NokiaResidence #apartament2plus1 #21Nokia
#BibaProperty #BibaPropertyShitje #cmimi90000Euro #90000Euro #lokacionPremium
#lokacionStrategjik #lokacionQendror #lokacionIdeal #rezidencaNeShitje #apartamentNeRezidenca
#shitjeNokia #proneNokia #investimNokia #BibaProperty#Nokia