Appartamento in vendita a Durazzo 1+1, Vuoto, 18.24 km dal centro citta

Casa in vendita | Data: 06/11/2025 17:12 | PostID: 558576
Pagamento 203,515 Euro
Ambiente 1+1, Vuoto
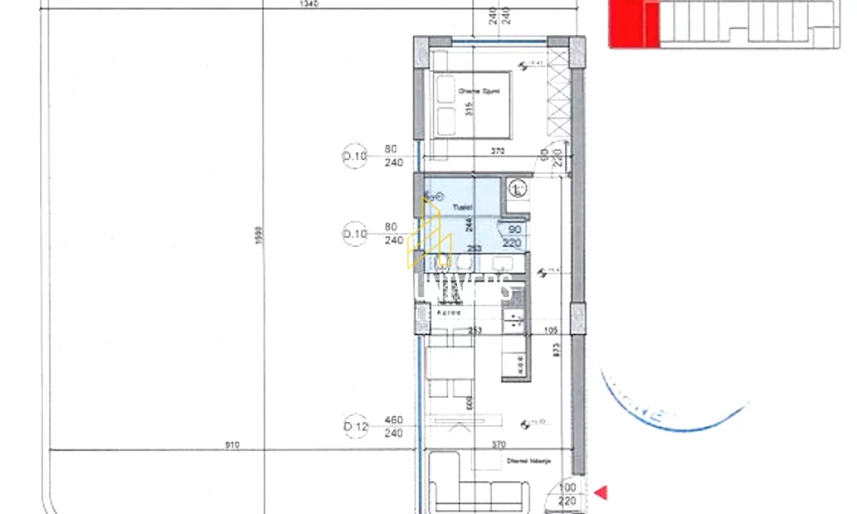
Superficie 61 m²
Piano Piano 1, Ascensore 1
Camere | Soggiorno Appartamento
Distanza 18.24 km dal centro citta
Deal? Po pranojme agjensi
Puo essere affittato mensilmente circa 628 Euro
Citta - Zona Durazzo - Zone Periferike
Indirizzo Hamallaj, Bashkia Durres, Shqiperia
Letture
277
La Casa in vendita si trova a Durazzo nella Zona "Zone Periferike" che si trova 18.24 km dal centro citta,
Questa Casa in vendita si posizionata al 1 piano e dispone una superfice di 61 m2, 1+1 (Camere | Soggiorno) e l'arredamento per questa casa è "Vuoto"
Share