Shtepi ne shitje Apartament ne Tirane, 2+1, Mobilimi Bosh, pa mobiluar, Pagesa 135,320 Euro.

Shtepi ne shitje 52719 Njoftime
Date: 12/01/2026 11:50
Share Save
Pagesa 135,320 Euro
Mobilimi 2+1, Bosh, pa mobiluar
Siperfaqa 87 m²
Kati Kati 11, Ashensor 1
Ambienti Apartament
Distanca 2.33 km nga qendra
Deal? Po pranojme agjensi
Vleresim i sistemit ne qera 450 Euro
Qyteti - Zona Tirane - Rruga Dritan Hoxha/Ish Fusha Aviacionit
Adresa Ish Fusha e Aviacionit, Tirane, Shqiperia
PostID: 573305
Lexime:98
Data: 12/01/2026 Ora: 11:50
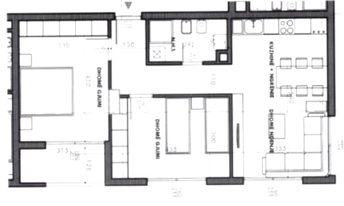
Apartament 2+1 ofrohet per shitje tek Ish-Fusha e Aviacionit. Ndertim cilesor dhe i mireadministruar. Hyrje me hapesire te bollshme dhe kubature e rregullt. Apartamenti eshte ne faze ndertimi dhe pritet te mbaroje ne fundin e vitit 2026. 2 Dhoma gjumi. Ambient ndenjie+kuzhine gatimi. Tualet. Ballko. Zone mjaft e preferuar dhe lehtesisht e aksesueshme.
Ndaje
Postimet e reja ne Shtepi ne shitje dhe Prona Imobiliare
Apartament 1+1 per shitje tek Ish-Fusha e Aviacionit.
Pagesa 93,000 Euro
01/12/2025 14:04

Adresa: Ish-fusha E Aviacionit , Rruga Dritan Hoxha , Tirane

Shiko Detajet
Apartament 2+1 per shtije tek Colonnade Residence.
Pagesa 160,000 Euro
21/11/2025 16:02

Adresa: Rruga Dritan Hoxha Tiranƫ,shqipƫria, Rruga Dritan Hoxha , Tirane

Shiko Detajet
Apartament 2+1 per shitje tek Eagle Rsd/Casa Italia.
Pagesa 166,750 Euro
17/11/2025 15:39

Adresa: Prane Casa Italia, Rruga Dritan Hoxha , Tirane

Shiko Detajet