Shtepi ne shitje Apartament ne Tirane, 3+1, Mobilimi E mobiluar, Pagesa 170,000 Euro.

Shtepi ne shitje 52678 Njoftime
Date: 18/03/2025 15:13
Share Save
Pagesa 170,000 Euro
Mobilimi 3+1, E mobiluar
Siperfaqa 126 m²
Kati Kati 6, Ashensor 1
Ambienti Apartament
Distanca 16.50 km nga qendra
Vleresim i sistemit ne qera 561 Euro
Qyteti - Zona Tirane - Stacioni Trenit/Siri Kodra/5 Maji/Rruga e Dibres/Medreseja
Adresa Stacioni Trenit
PostID: 499207
Lexime:31
Data: 18/03/2025 Ora: 15:13
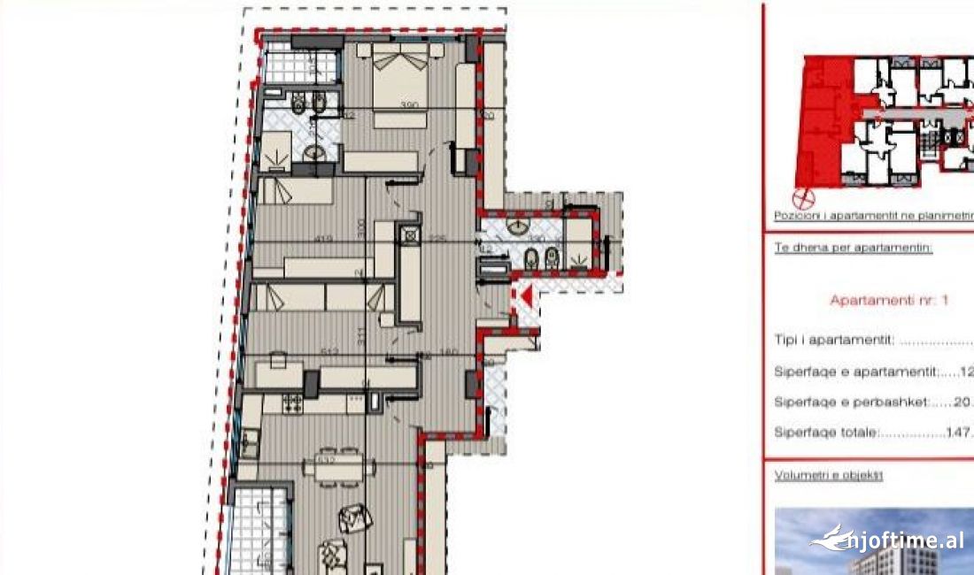
Shitet apartament modern 3+1 me një sipërfaqe totale prej 147.07 m², duke përfshirë:

📏 Sipërfaqe e brendshme: 126.7 m²  
📐 Sipërfaqe e përbashkët: 20.37 m²  

💰 Çmimi: 1700€  

Ndodhet në një zonë të preferuar, ideale për një jetë komode dhe funksionale!  

📞 Kontakto për më shumë informacion [NR]

Ndaje
Postimet e reja ne Shtepi ne shitje dhe Prona Imobiliare
Shitet Apartament 2+1 – Rruga Filip Jano, Kati 6 🏡✨
Pagesa 175,000 Euro
18/03/2025 15:10

Adresa: Stacioni Trenit, Stacioni trenit/Rruga e Dibres/Medreseja , Tirane

Shiko Detajet
Shitet Apartament 2+1 – Rruga Filip Jano 🏡✨
Pagesa 175,000 Euro
18/03/2025 15:06

Adresa: Stacioni Trenit, Stacioni trenit/Rruga e Dibres/Medreseja , Tirane

Shiko Detajet
 Shitet Apartament 1+1 – Rruga Filip Jano, Kati 5
Pagesa 175,000 Euro
18/03/2025 15:02

Adresa: Stacioni Trenit, Stacioni trenit/Rruga e Dibres/Medreseja , Tirane

Shiko Detajet